Intimidad y privacidad en una vivienda esquinera para una integración armónica con el entorno.
En la búsqueda de un concepto arquitectónico que priorice la intimidad y privacidad, se ha desarrollado una impresionante vivienda sobre un terreno esquinero de más de 900m2. Este desafío, que no resulta sencillo de lograr en este tipo de ubicación, ha sido abordado con un diseño innovador que utiliza la arquitectura como herramienta para generar una barrera visual hacia el exterior. De esta manera, se logra aprovechar el “fondo” del terreno, creando un espacio integrado e integrador de la funcionalidad de la vivienda.
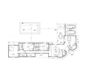
Al adentrarnos en esta morada, descubrimos cómo podemos habitar simultáneamente el espacio interior desde la sala de estar, con una participación visual del entrepiso playroom que posee un concepto abierto en doble altura, y la cocina comedor. Estos espacios se encuentran conectados de forma fluida a una amplia galería exterior-quincho que, a su vez, nos invita a recorrer el jardín y la zona de piscina con su solárium. De esta manera, nos encontraremos en el otro extremo de la casa, donde se sitúa la galería de salida del dormitorio en suite. Esta galería cuenta con una escalera exterior que nos dirige hacia una gran terraza adyacente al playroom, desde donde podemos contemplar la belleza del barrio: la exuberante vegetación, el atardecer reflejado en el lago y el sereno silencio de la noche, con calles y casas iluminadas.
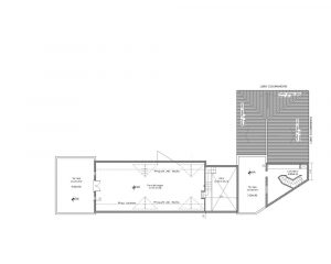
La vivienda, con un total de 280 m2 cubiertos y 105 m2 semicubiertos, ofrece un amplio estar en doble altura, una cocina comedor con barra desayunador y un toilette en el hall de recepción.
La vivienda, con un total de 280 m2 cubiertos y 105 m2 semicubiertos, ofrece un amplio estar en doble altura, una cocina comedor con barra desayunador y un toilette en el hall de recepción. Además, cuenta con una cochera cubierta para dos vehículos y una zona descubierta para cuatro vehículos adicionales. En la zona íntima, encontramos una espaciosa suite con su respectivo baño completo y vestidor privado, así como dos dormitorios con un baño completo de uso común y un lavadero, todo en planta baja.
Desde el estar, se accede al entrepiso-playroom, que brinda vistas hacia el frente y el fondo de la propiedad, con una salida a una terraza. En otra sección de la casa, en planta alta, se encuentra un home-office con oficina, kitchenette, baño completo y un patio interior.
En cuanto a los espacios exteriores, la vivienda cuenta con una galería al frente, con acceso desde el estar, y una amplia galería que se extiende hacia el fondo de la propiedad. Esta última galería cuenta con un sector de parrilla, una mesada y una barra, y se integra al jardín y a la piscina con su solárium a través de un espacio semicubierto. Además, hay una escalera que nos conduce hacia la terraza en planta alta.
La imagen exterior de la vivienda se compone de elementos como piedra, chapa negra, madera, vidrio y revestimientos de colores, con una fuerte impronta de casa de campo.
La imagen exterior de la vivienda se compone de elementos como piedra, chapa negra, madera, vidrio y revestimientos de colores, con una fuerte impronta de casa de campo. La convicción de integrar visualmente los espacios interiores con los exteriores se logra mediante grandes ventanas que los vinculan, permitiendo una conexión armoniosa con el entorno natural.
Esta vivienda es un ejemplo magnífico de cómo un diseño cuidadoso y estratégico puede lograr la tan anhelada intimidad y privacidad en un entorno esquinero. La arquitectura se convierte en una aliada para crear un espacio acogedor y funcional que invita a disfrutar de la belleza de la naturaleza y a contemplar la tranquilidad de las noches iluminadas. ©
Estudio G.M. Fugazza
Insta: @gustavofugazza
Mail: gustavofugazza@gmail.com
Web: www.arqfugazza.com.ar
TXT: Gem I FOTOS: Estudio


